










Spatiile comerciale se afla in proiectul premium Barrio Residence Unirii din strada Voinicului, nr. 1-11, la doar 150 m de Bd. Unirii.
Dispun de spatii vitrate mari, finisaje premium si un vad comercial si pietonal bun.
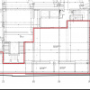
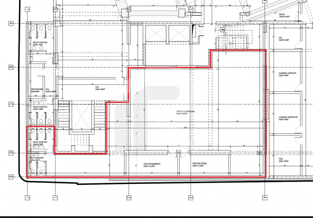
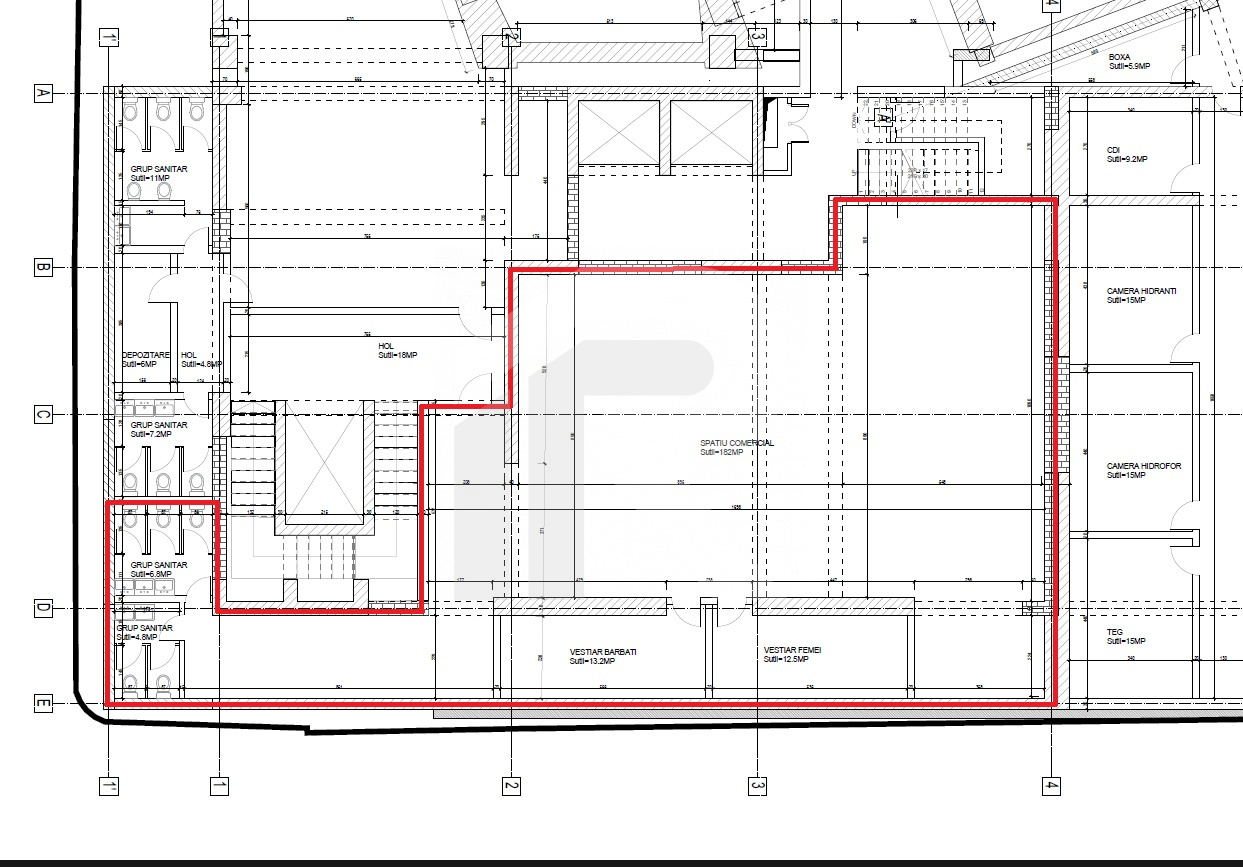
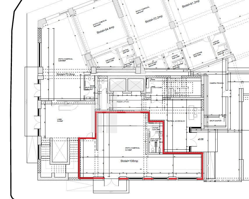
Disponibilitati:
Parter: intre 72 mp si 312 mp (dispun de terasa proprie), pret: 6000 euro+TVA/mpu.
Mezanin: open space de 887 mp cu posibilitate de compartimentare, pret: 5000 euro+TVA/mpu.
Subsol: intre 182 mp si 463 mp. (dispun de putere mare, pretabile si pentru RMN), pret: 4200 euro+TVA/mpu.
Posibilitate de montare hota. Parcarile sunt disponibile separat.Imobilul are termen de finalizare in aprilie 2026.